Neubauwohnanlage "le quartier ècole"
 
                                                                Neubauwohnungen in der Schulstraße 1a, 1b, 1c, 89250 Senden-Ay
Tradition und Zukunft, Natur und Infrastruktur, Freizeitwert und Wirtschaftskraft. Das alles trifft in Senden wie selbstverständlich aufeinander und verschmilzt zu einer besonders lebenswerten Verbindung.
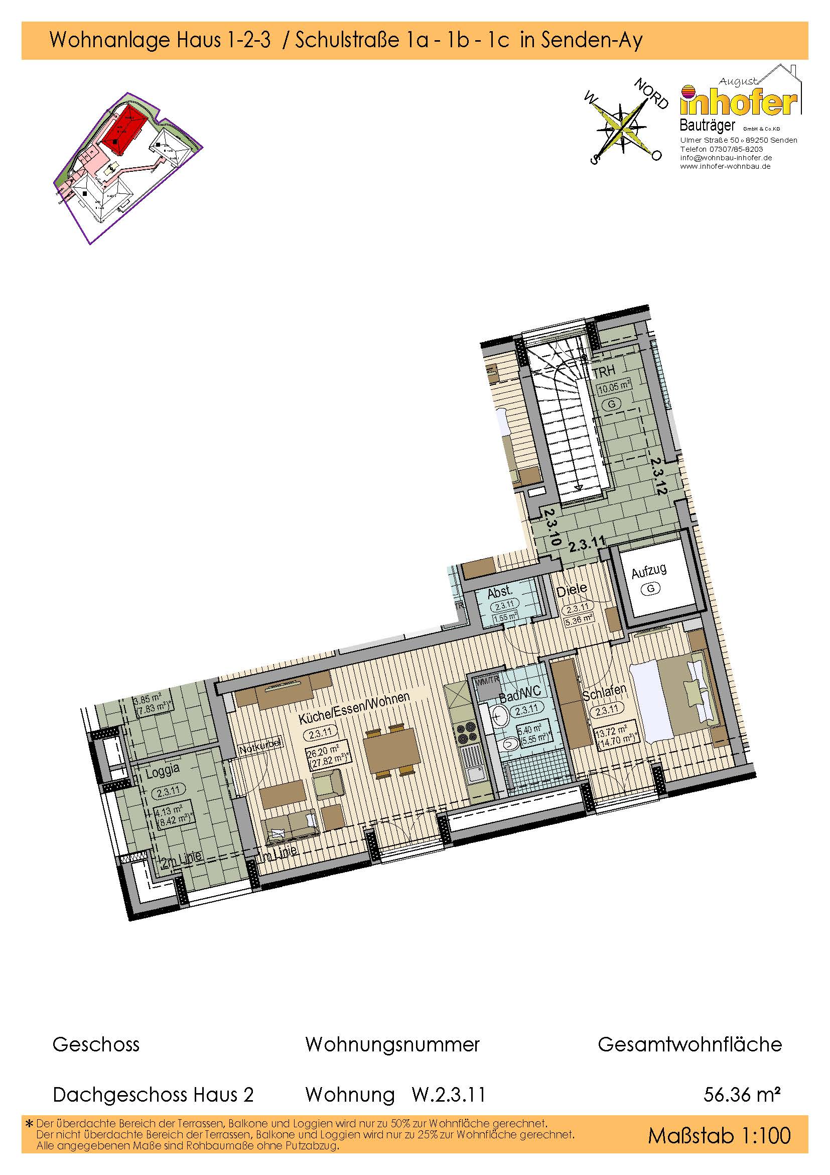
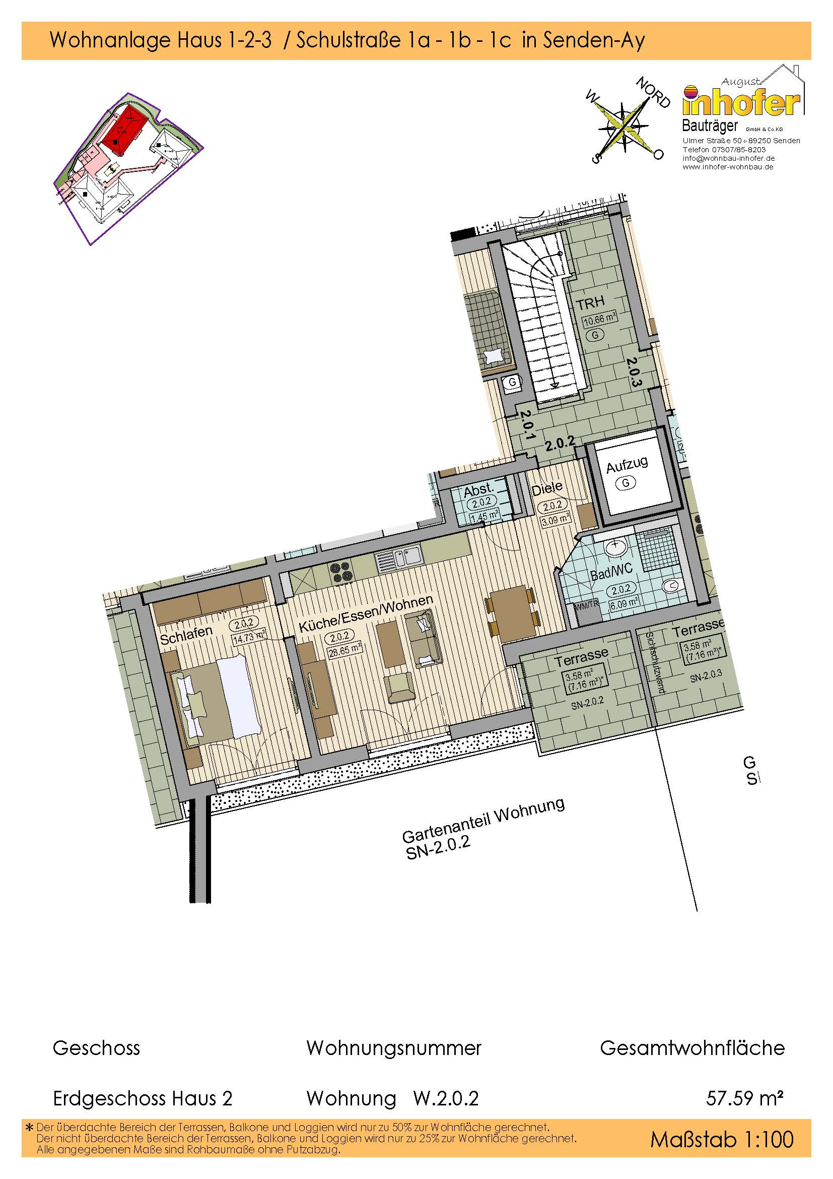
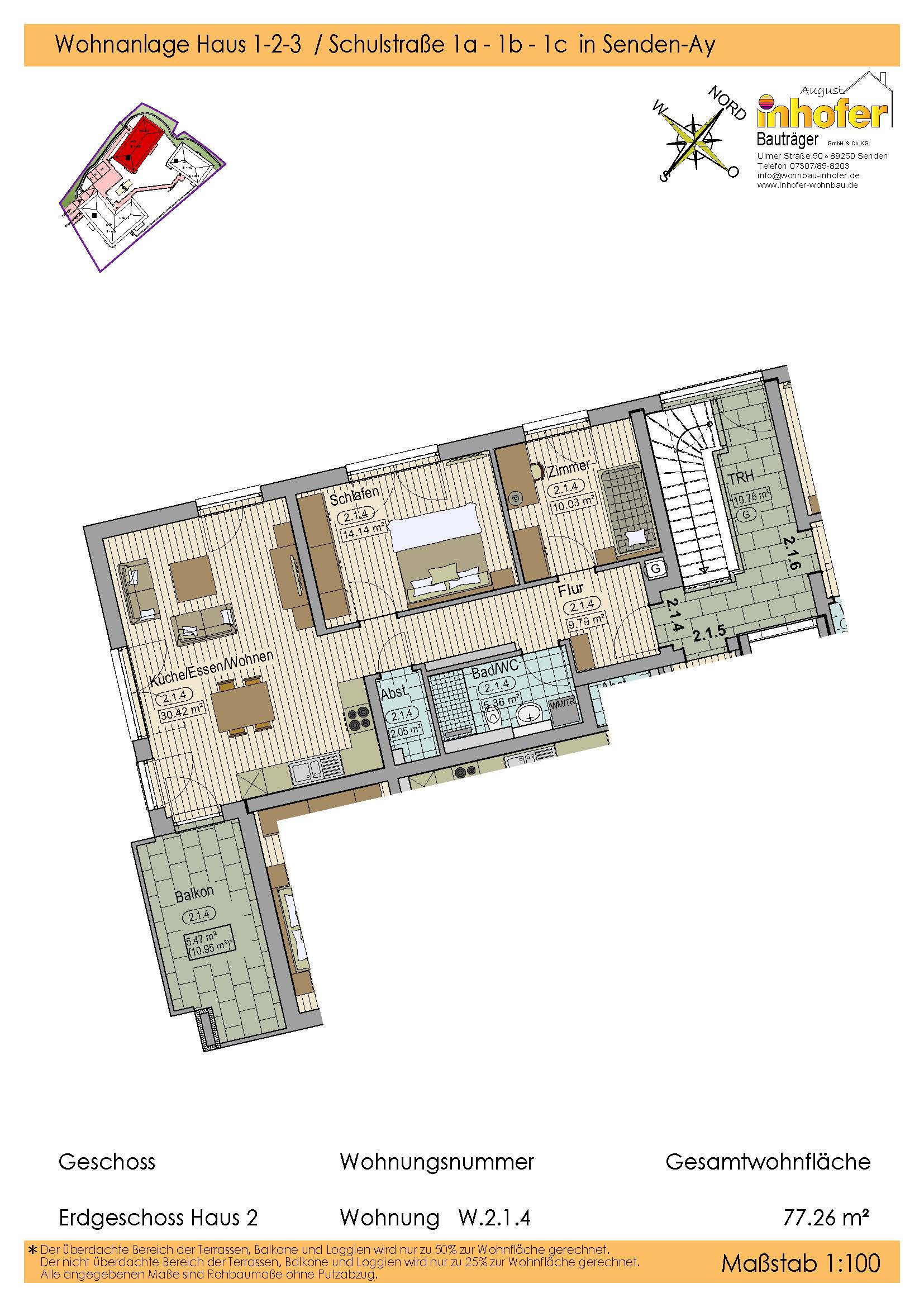
Klare Strukturen und die Konzentration auf das Wesentliche prägen die Architektur der Wohnanlage „le quartier école“. Die Wohnanlage stellt ein stilvolles Ensemble inmitten eines lebendigen Wohnumfeldes dar, in dem es sich leicht und unbeschwert wohnen lässt.  In der Anlage gibt es helle 2-, 3- und 4-Zimmer Wohnungen ab 55m² bis 105m² Wohnfläche mit variabel durchdachten Grundrissen zum Teil mit Gartenanteil, Loggien, oder Balkonen. 
Auch die Ausstattung lässt keine Wünsche offen. Warmes Echtholzparkett in Kombination mit einer Fußbodenheizung sorgt für Behaglichkeit. Elektrische Rollläden sowie eine Medienverkabelung gehören hier bereits zu unserer Standardausstattung. Durch die Aufzüge in allen Häusern, bodengleichen Duschen und barrierefreien Zugängen zu allen Häusern soll der Alltag erleichtert werden. Eine Tiefgarage welche mit allen Häusern verbunden ist steht für Ihren PKW und Ihre Fahrräder ebenfalls zur Verfügung.
 
                                                                                                                                                                                                                                                                                 
                                                                                                                                                                                                                                                                                 
                                                                                                                                                                                                                                                                                 
                                                                                                                                                                                                                                                                                 
                                                                                                                                                                                                                                                                                 
                                                                                                                                                                                                                                                                                 
                                                                                                                                                                                                                                                                                 
                                                                                                                                                                                                                                                                                 
                                                                                                                                                                                                                                                                                 
                                                                                                                                                                                                                                                                                 
                                                                                                                                                                                                                                                                                 
                                                                                                                                                                                                                                                                                 
                                                                                                                                                                                                                                                                                 
                                                                                                                                                                                                                                                                                 
                                                                                                                                                                                                                                                                                 
                                                                                                                                                                                                                                                                                 
                                                                                                                                                                                                                                                                                